
- Buy
- Rent
- Commercial
- Find an Agent

9 Wingreen Loop, The Hills, TX 78738











TX/Travis/The Hills/78738/9 Wingreen Loop, The Hills, TX 787389 Wingreen Loop, The Hills, TX 78738
9 Wingreen Loop, The Hills, TX 78738
House for Sale by Shannon Ayres, Christie's Int'l Real Estate.
- Overview
- Details
- Open Houses
- More
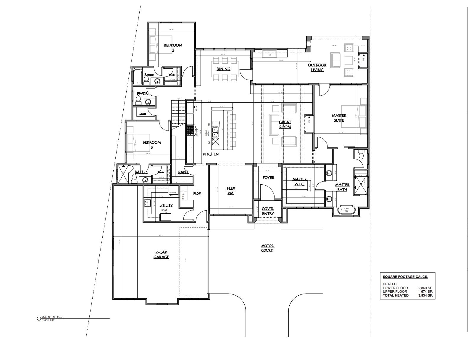
Discover the opportunity to bring your vision to life with a custom residence by Grandview Custom Homes, ideally situated on a rare, flat .23-acre homesite in the prestigious gated community of The Hills of Lakeway. Designed for both elegance and functionality, this to-be-built home offers a thoughtfully designed floorplan featuring 5 bedrooms or 4 bedrooms with a dedicated office, 5.5 bathrooms, and a refined parlor room—perfect for elevated entertaining or quiet retreat. Soaring high ceilings and designer details throughout create a sophisticated yet inviting atmosphere, while the potential for beautiful second-story Hill Country views enhances the home’s appeal. Every element is curated to deliver a seamless blend of luxury and livability. Set within a private setting, the property provides the perfect backdrop for refined indoor-outdoor living—whether you envision expansive entertaining spaces, a chef-inspired kitchen, or a serene primary suite. Residents of The Hills enjoy a mandatory Social Membership, with the option to elevate your lifestyle through access to golf, tennis, fitness, and world-class amenities. Ideally located in the heart of Lakeway, you’re just minutes from premier dining, shopping, top-rated schools, and Lake Travis. This is a rare opportunity to build a custom luxury home in one of the area’s most sought-after communities—tailored entirely to your lifestyle.