
- Buy
- Rent
- Commercial
- Find an Agent

584 Baretta Loop, Buda, TX 78610










TX/Hays/Buda/78610/584 Baretta Loop, Buda, TX 78610584 Baretta Loop, Buda, TX 78610
584 Baretta Loop, Buda, TX 78610
House for Sale by Laura Carter, Realty One Group Prosper.
- Overview
- Details
- Open Houses
- More
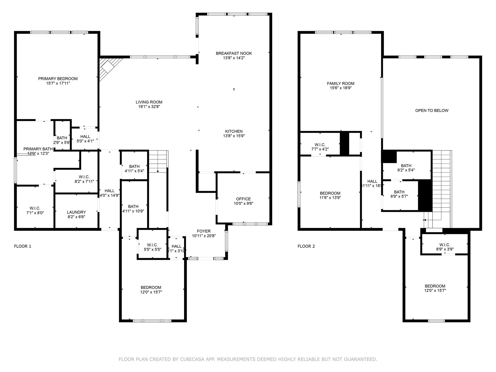
Welcome to 584 Baretta Loop, located in the sought-after master-planned community of Sunfield! While living here, you will be in walking distance to the lazy river amenity center as well as all of the other amenities Sunfield has to offer, like parks, trails, fishing ponds, and the onsite elementary school. This home exhibits exceptional curb appeal with light gray brick accented by dark trim and a matching roof, creating a striking presence in the neighborhood. Step inside and you will immediately notice the abundance of natural light pouring in through large windows, highlighting the warm hardwood floors that flow throughout the main living areas (with carpet reserved for the bedrooms). The spacious kitchen is a true highlight, offering extensive cabinet and counter space along with a generous walk-in pantry. The thoughtful floor plan includes four bedrooms, with the primary suite and a secondary bedroom with its own ensuite bath conveniently located on the main level. In addition to the large breakfast nook, there is another space next to the kitchen that can be used as an office, playroom, or formal dining space. Upstairs, you’ll find two additional bedrooms, each with walk-in closets, a full bathroom, and a versatile bonus/game/media room. Enjoy ultimate privacy outdoors with no rear neighbors and relax or entertain on the expansive covered back patio. Come experience this beautiful home and all that Sunfield living has to offer!