
- Buy
- Rent
- Commercial
- Find an Agent

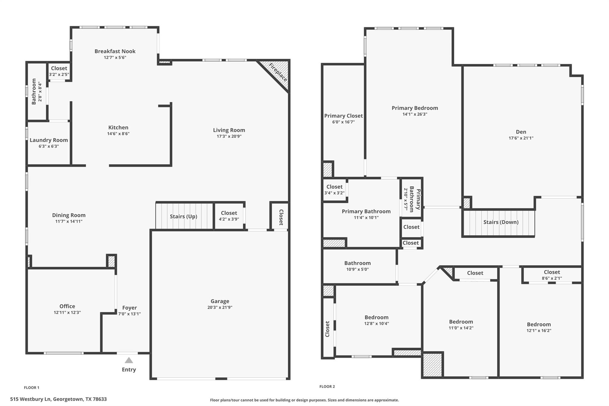
515 Westbury Ln, Georgetown, TX 78633










TX/Williamson/Georgetown/78633/515 Westbury Ln, Georgetown, TX 78633515 Westbury Ln, Georgetown, TX 78633
515 Westbury Ln, Georgetown, TX 78633
House for Sale by James Konvalinka, MODUS Real Estate.
- Overview
- Details
- Open Houses
- More
Sellers are offering $10,000 closing cost credit to buyers with acceptable offers received by 12/31/25!! New HVAC system installed in 2025. Welcome to this stunning Craftsman-style home in the desirable Creekside at Georgetown Village! Built in 2015, this spacious 2-story residence offers 4 bedrooms, a first floor office, huge bonus room on the second floor, 2.5 bathrooms, and over 3,200 sq. ft. of living space on a generous 0.22-acre corner lot. Step inside to find a bright and open floor plan featuring multiple dining areas, a semi open concept kitchen with an island and eat-in dining area, granite countertops, stainless steel appliances, and ample cabinet space. The home also boasts tile and vinyl flooring on the main flood and brand new carpets on the second, along with recessed lighting throughout, and elegant French doors on the primary suite, bonus room and first floor office. The primary suite upstairs is designed for comfort with a private bathroom that has a dual vanity, walk-in shower, and walk-in closet. The other 3 bedrooms and additional large bonus room provide flexibility for family or guests. Enjoy cozy evenings and holidays in the family room by the fireplace or entertain outdoors on the large back patio which is perfect for gatherings!