
- Buy
- Rent
- Commercial
- Find an Agent

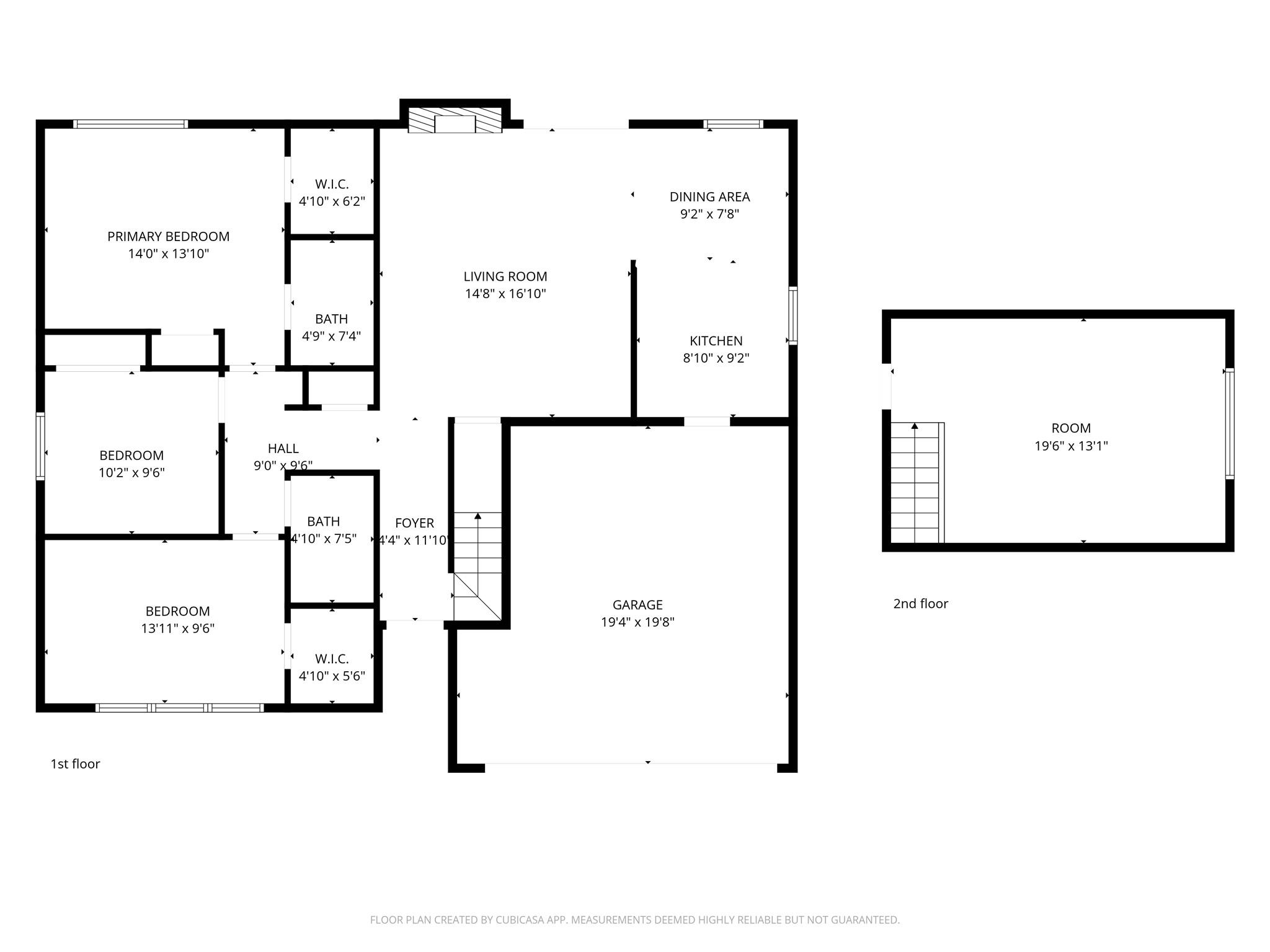
509 Blackberry Dr, Austin, TX 78745



















































TX/Travis/Austin/78745/509 Blackberry Dr, Austin, TX 78745509 Blackberry Dr, Austin, TX 78745
509 Blackberry Dr, Austin, TX 78745
House for Sale by Benjamin Woolfolk, Twelve Rivers Realty.
- Overview
- Details
- Open Houses
- More
No HOA! This property has been renovated from the roof to the ground starting in 2011. Hardie Plank siding installed in 2012, vinyl windows and sliding glass door in 2022, and roof in 2025. The siding was repainted in 2022, and the majority of the windows and sliding glass door is double lifetime with excellent insulation ratings. The roof is a high-definition GAF shingle from the Timberline HDZ line. Armstrong VCT installed in 2011, stripped and polished again in 2025 for low-maintenance living. Front door, two-panel bedroom doors, and bathroom doors installed in 2025 as well as finger-jointed solid wood baseboards. Interior repainted in 2025. Curtains and Levelor blinds installed in 2025. Upstairs carpet replaced in 2025. Wood burning fireplace inspected and repaired in 2025. Kitchen renovated in 2025 and is a blend of custom cabinetry and fully trimmed IKEA cabinets. Quartz counters with single basin undermount stainless steel kitchen sink installed in 2025 as well as marble backsplash. Bosch dishwasher installed in 2023, and Kitchenaid range and refrigerator installed in 2025. Bathrooms renovated in 2025 with semi-custom glass door from Shower Doors of Austin, wallpaper, vanities, and mirrors. All bedroom closets have adjustable Rubbermaid organizers, and extra closet organizer pieces will convey. Garage amenities include NewAge Pro line cabinets with a butcher block counter installed in 2024, Rubbermaid Fast Track, finished walls and ceiling, 8 LED light fixtures, and an insulated garage door with 8 double pane windows installed in 2023. Water heater replaced in 2025. Backyard is fenced with 6' cedar privacy pickets and steel posts and has multiple garden beds and a mature productive pecan tree. The front yard has 2- and 3-rail fencing, a productive fig tree, drought and heat-resistant plants, and approximately 200 sqft of drip irrigated grow beds that are currently planted with floristry quality cutting flowers for bouquets.