
- Buy
- Rent
- Commercial
- Find an Agent

5004 Fort Clark Dr, Austin, TX 78745























































TX/Travis/Austin/78745/5004 Fort Clark Dr, Austin, TX 787455004 Fort Clark Dr, Austin, TX 78745
5004 Fort Clark Dr, Austin, TX 78745
Condo for Sale by Penny Kavanaugh, Zilker Properties of Austin.
- Overview
- Details
- Open Houses
- More
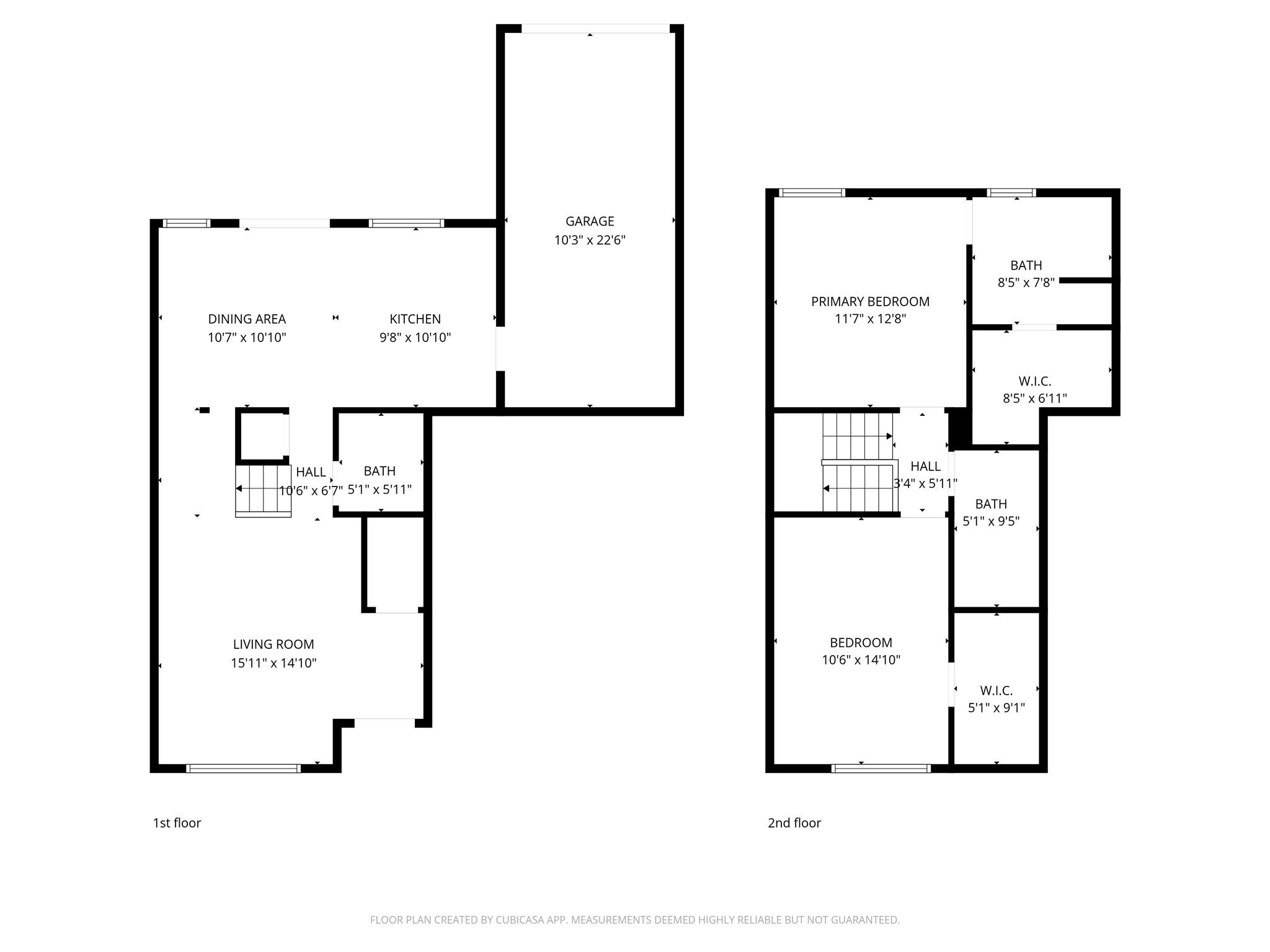
Look at this cool South Austin Condo located in the 78745 zip code. It is located only 1/2 mile from the Battle Bend Park, less than 2 miles to St Elmo District and less than 6 miles from the Capitol in downtown Austin. There is a nice community pool and green space right across the street. This 2 story, 2 bedrooms, 2 1/2 bathrooms with enclosed back patio and a gated front courtyard is located under large shade trees. There was a major remodel done 12+ years ago that included taking the third bedroom and making it a full bath with large walk-in closet. More updates done 5 years ago including replacing both HVAC units and fresh interior paint. In the past 2 years, the current owner has replaced all kitchen appliances with LG energy efficient to include the Refrigerator, Range, Microwave, Dishwasher, and washer/dryer. The hot water and kitchen sink disposal were also replace. New granite countertops, kitchen sink/faucet were installed last month. Replaced both upstairs bathroom faucets, installed 2 Ecobee smart thermostats, had attic cleaned for all old installation, sanitized, and 14 inches of new blown installation, added HVAC vents to both upstairs bathrooms, and all new Hardie-Board installed and painted on front part of the unit. This unit is move in ready. NO carpet.