
- Buy
- Rent
- Commercial
- Find an Agent

3600 Tom Miller St # 2, Austin, TX 78723



















































TX/Travis/Austin/78723/3600 Tom Miller St # 2, Austin, TX 787233600 Tom Miller St # 2, Austin, TX 78723
3600 Tom Miller St # 2, Austin, TX 78723
House for Sale by Amanda Trevino, Compass RE Texas, LLC.
- Overview
- Details
- Open Houses
- More
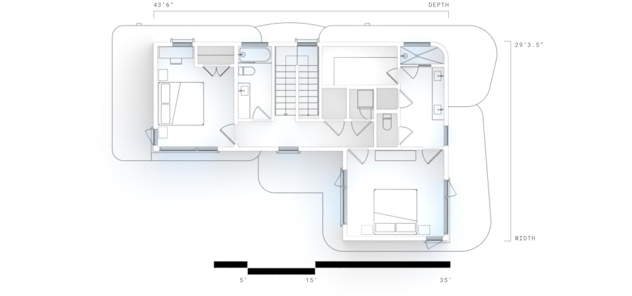
Inquire about preferred lender incentives. ICON’s newest 3D-printed homes are coming to Mueller! Designed by renowned Michael Hsu Office of Architecture and overlooking Mueller’s Southeast Greenway, these homes are the perfect combination of beautiful design, ICON’s resilient construction and an incredible location. This 2-bedroom home features an open-concept layout and modern design. Natural light shapes and enhances the living spaces with floor to ceiling glass facing the private yard, clerestory windows in the living room and oversized windows throughout the rest of the home including views over the Southeast Greenway and Morris Williams Golf Course. The first floor features an inviting open floor plan with a sleek and modern kitchen, sculptural dining alcove and light-filled living room overlooking a large private yard. Upstairs is the exceptional primary suite with massive windows, a beautiful en-suite bath and an additional bedroom and bathroom. The home’s exquisite finishes blend natural materials and luxury living, including polished concrete floors, quartz countertops, wood flooring, Andersen windows, Bosch appliances and standing seam metal roof. ICON builds high-performance, durable homes using robotic technology and proprietary cementitious-based material. Designed and engineered for precision, speed and resiliency, the innovative technology delivers homes with higher levels of insulation that decreases the home’s temperature fluctuations in the summer and winter, and the wall systems are designed to resist water, mold, termites and fire. Conventional construction methods for second story, roofs, windows and doors with elevated finishes are then used to complete the homes. Located in a coveted section of the Mueller community with expansive views of the Southeast Greenway, the innovative homes will be walking distance to restaurants, shopping, parks and more.