
- Buy
- Rent
- Commercial
- Find an Agent

2301 S 5th St # 31, Austin, TX 78704










TX/Travis/Austin/78704/2301 S 5th St # 31, Austin, TX 787042301 S 5th St # 31, Austin, TX 78704
2301 S 5th St # 31, Austin, TX 78704
Condo for Rent by Dana Ambs, eXp Realty, LLC.
- Overview
- Details
- Open Houses
- More
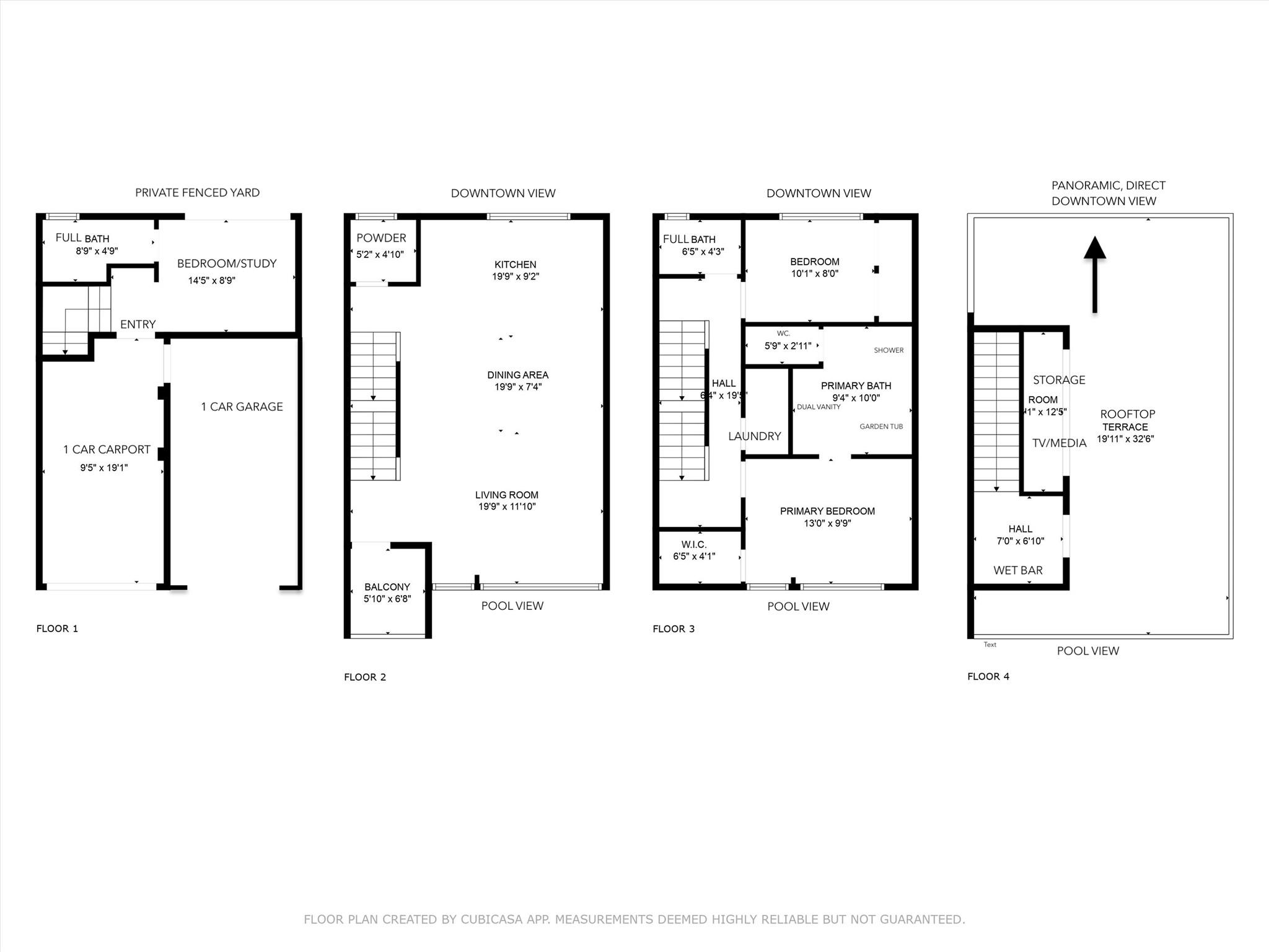
LUXURY LIVING in 78704. This building has it all as a five-star green-rated residence - the South5th showcases an unparalleled level of design and construction. As a true steel and concrete building, it features commercial-grade window glazing, solar panels, Level 4 drywall throughout, and high-efficiency systems. The crown jewel of this home is its private rooftop terrace, elevated and spanning over 600 square feet, with sweeping views of the downtown Austin skyline plus it offers a conditioned wet bar and additional storage. Inside, expansive glass windows create a bright, airy atmosphere that floods the home with natural light on all levels. The interior has been freshly painted, further enhancing its clean, modern aesthetic. From the one-car garage and additional covered carport, enter the first floor, where you’re greeted by a flexible room with direct access to a private outdoor yard space. This level also includes an ensuite bathroom, allowing it to function perfectly as guest space or a private home office. On the second floor, the open-concept living and dining areas flow seamlessly, with a covered balcony extending the space outdoors. The kitchen features Bosch appliances, quartz countertops, and island with gas cooktop, blending both functionality and style. A custom industrial steel staircase adds a striking design element to the home. The third floor is dedicated to the primary suite, bathed in natural light and featuring a walk-in closet and a spa-inspired bathroom with a garden tub and separate shower. A guest bedroom with two closets, guest bathroom, and a laundry area complete this level. Ascend to the 4th level for panoramic downtown views from the impressive rooftop terrace. The South5th Condo community offers resort-style amenities, including a large pool, spa and BBQ grill.