
- Buy
- Rent
- Commercial
- Find an Agent

222 Rio Ranchero Rd, Georgetown, TX 78628



















































































TX/Williamson/Georgetown/78628/222 Rio Ranchero Rd, Georgetown, TX 78628222 Rio Ranchero Rd, Georgetown, TX 78628
222 Rio Ranchero Rd, Georgetown, TX 78628
House for Sale by Cody Cooper, Sprout Realty.
- Overview
- Details
- Open Houses
- More
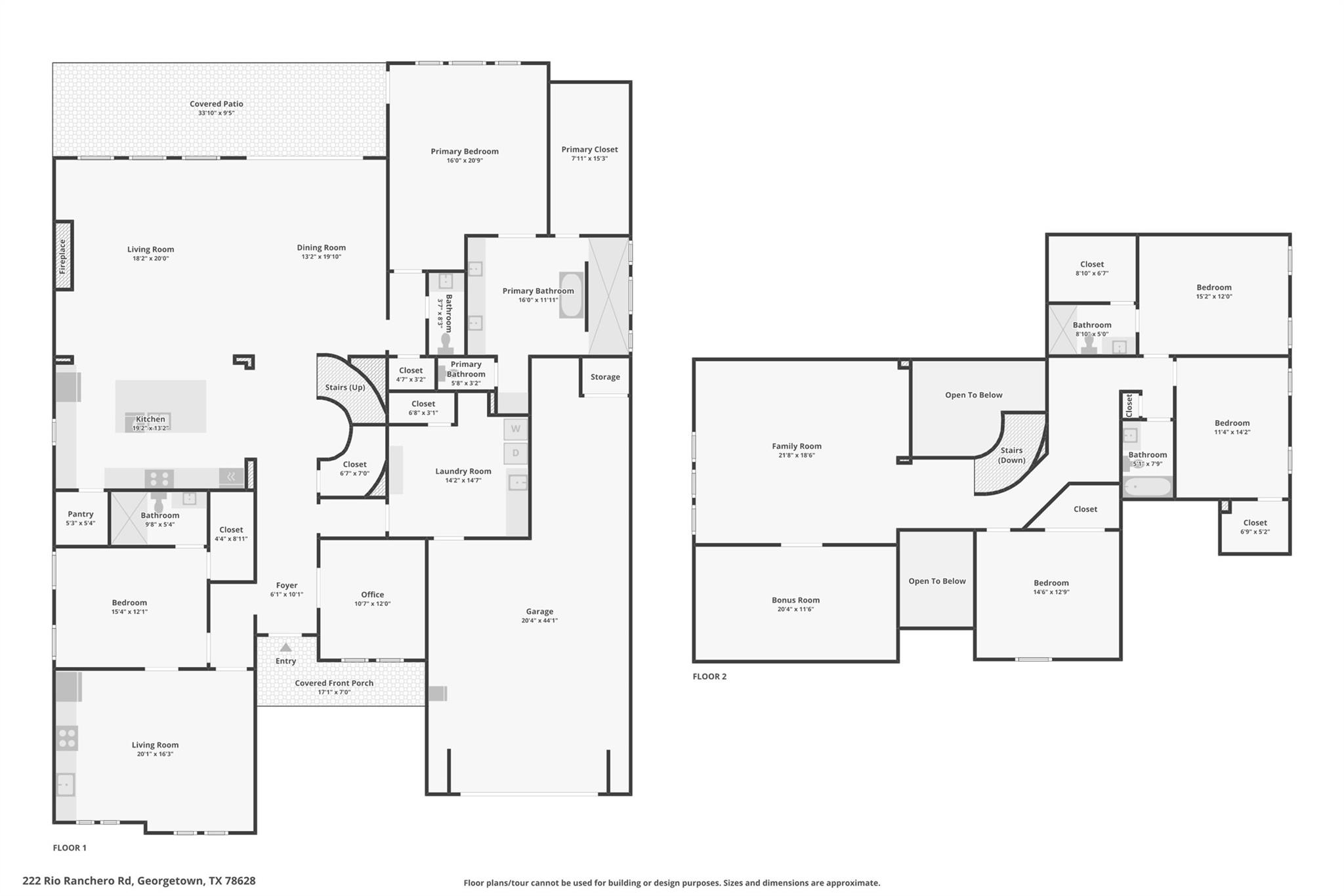
Completed in 2024 by Drees Custom Homes and extensively upgraded at build, this exceptional 5,000+ sq ft residence at 222 Rio Ranchero Rd offers luxury, efficiency, and lifestyle with peaceful lake views. Soaring ceilings, expansive windows, and a light-filled open-concept layout create an impressive yet comfortable living environment. The current owner has thoughtfully converted the garage into a versatile flex space featuring a golf simulator and home gym, complete with upgraded garage flooring, added ceiling lighting, and a dedicated 2-ton mini split system providing both heating and air conditioning for ultimate comfort in every season, all easily converted back to a traditional garage if desired; golf simulator and gym equipment are negotiable. The home also includes a dedicated movie theatre room for an elevated entertainment experience. A massive solar panel system provides outstanding energy efficiency and long-term savings, while high-end finishes and generous living spaces throughout make this nearly new home a rare opportunity in one of Georgetown’s premier settings.