
- Buy
- Rent
- Commercial
- Find an Agent

217 Pacific Grove Cir, Liberty Hill, TX 78642



















TX/Williamson/Liberty Hill/78642/217 Pacific Grove Cir, Liberty Hill, TX 78642217 Pacific Grove Cir, Liberty Hill, TX 78642
217 Pacific Grove Cir, Liberty Hill, TX 78642
House for Sale by Daniel Wilson, New Home Now.
- Overview
- Details
- Open Houses
- More
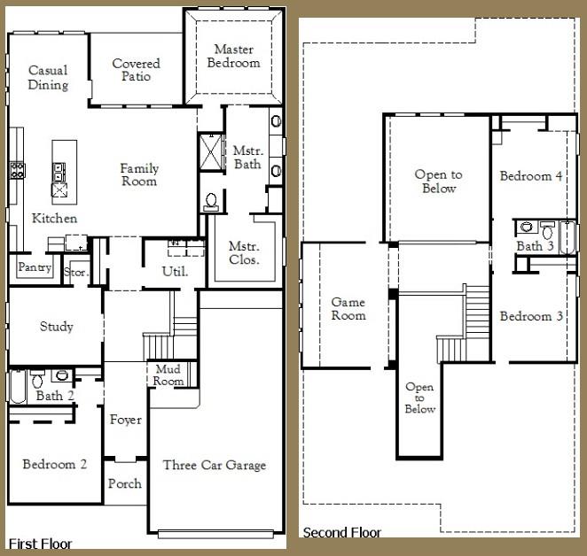
New Coventry Home! The Schertz floor plan offers an impressive layout designed to accommodate both comfort and functionality. This two-story home features four spacious bedrooms and three well-appointed bathrooms, making it ideal for families or those who enjoy hosting guests. The main living areas are thoughtfully designed to promote seamless movement between spaces, with an open-concept kitchen, dining, and living area creating a welcoming hub for daily activities and entertaining. Upstairs, the additional bedrooms provide privacy and versatility, whether used as guest rooms, a home office, or recreational spaces. A three-car garage ensures ample room for vehicles and additional storage, while the home's overall layout emphasizes both style and practicality. The Schertz floor plan is a perfect choice for those seeking a versatile and accommodating home.
