
- Buy
- Rent
- Commercial
- Find an Agent
21201 Kathy Ln, Spicewood, TX 78669







































































TX/Travis/Spicewood/78669/21201 Kathy Ln, Spicewood, TX 7866921201 Kathy Ln, Spicewood, TX 78669
21201 Kathy Ln, Spicewood, TX 78669
House for Sale by Rich Ryon, Stanberry REALTORS.
- Overview
- Details
- Open Houses
- More
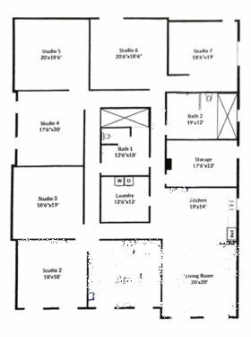
Hill Country Living at its best! Enjoy this 1,816 sqft Tree Top Home on 6 acres while utilizing the 5,000 sqft Commercial Studio building for work, income, or other interests. You’ll have lovely Hill Country views from your private balcony off the master suite of this gorgeous home. And you have a garden tub and a walk-in shower in the spacious master bath to choose from. The kitchen includes a breakfast area and an island with bar seating. The openness between the kitchen, dining, and living areas provides good traffic flow while entertaining family or friends. They can enjoy the views and the outdoors on the broad deck that spans the side of the house. The oversize garages offer workshop areas and EV charging. The Commercial Studio building’s interior is finished with a living area and a kitchen. Additionally, there are 7 large individual studio rooms. Ceilings are 14 ft high and there is abundant sound and heat insulation. Interior walls are non-loadbearing allowing customized floorplans. There are two full bathrooms. An upstairs mezzanine is available for storage. Want even more space? There are several level areas on the 6 acres for additional buildings. There is no zoning limiting types of usage. An Argentine winery and a dog care facility are located in the immediate area. The studios could easily be converted to a vacation rental for large groups with 6-7 bedrooms and common kitchen and living areas using the current finish out. The fantastic growth we are seeing in this area opens many opportunities for commercial use of this space. Seller will consider financing the sale at a below market interest rate. Call listing agent for details.
