
- Buy
- Rent
- Commercial
- Find an Agent

2110 County Road 285, Liberty Hill, TX 78642





















































































TX/Williamson/Liberty Hill/78642/2110 County Road 285, Liberty Hill, TX 786422110 County Road 285, Liberty Hill, TX 78642
2110 County Road 285, Liberty Hill, TX 78642
House for Sale by Megan Jarrard Bradshaw, REALTY CAPITAL CITY.
- Overview
- Details
- Open Houses
- More
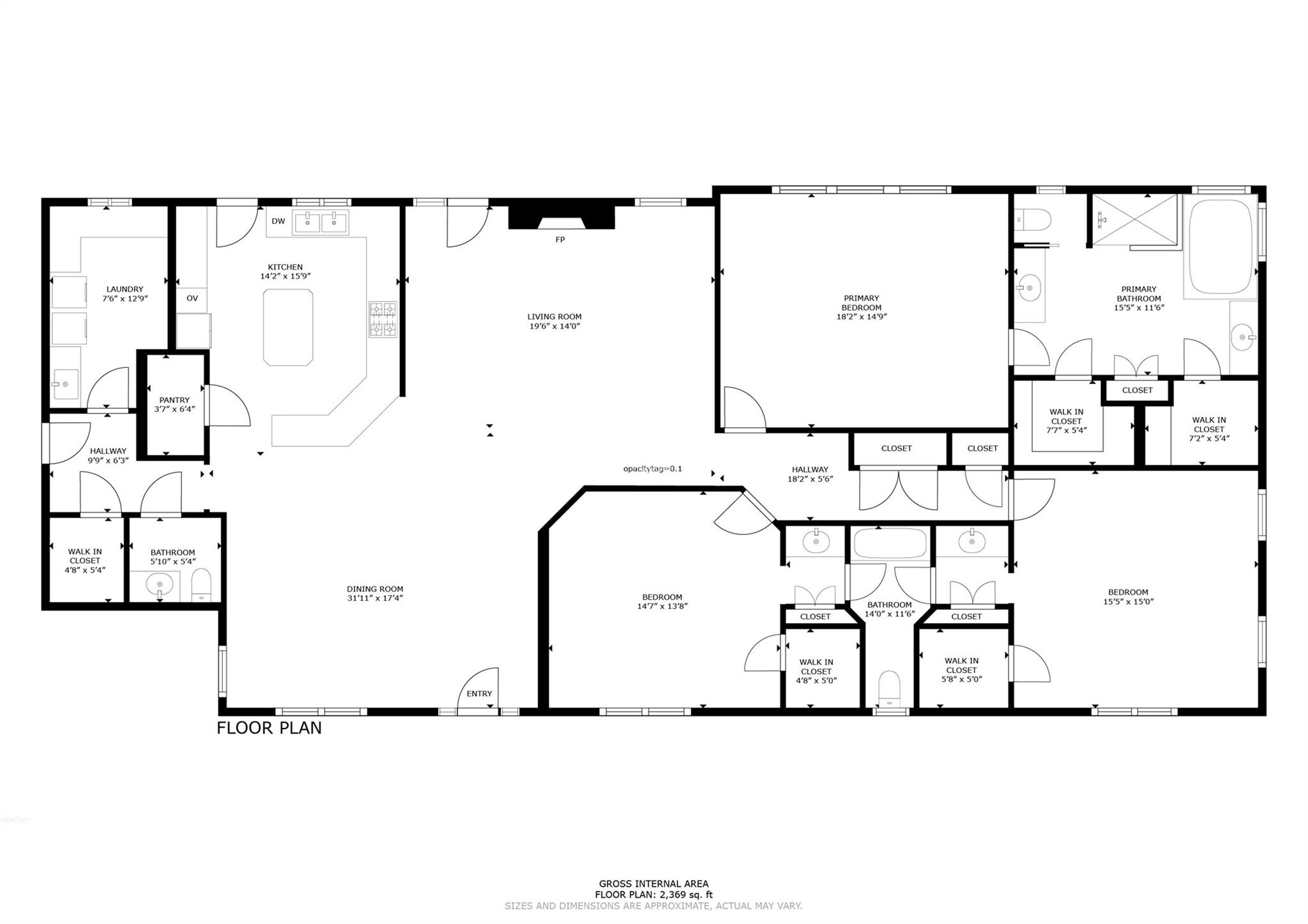
Room to Breathe, Views to Love! 15+ acres of peace with minimal restrictions and a beautifully maintained, single-story home built by the original owners to match the lifestyle. Enjoy peaceful Hill Country views from both the front and back porches, perfect for morning coffee, sunsets, and taking in the wide-open space around you. Inside, the home offers a great layout with spacious rooms and fantastic storage throughout. Home includes oversized closets, a large pantry, and a laundry/work room packed with cabinets and workspace. Recent updates include a new HVAC system (2024), a full interior repaint in December 2025, updated light fixtures, a new 50-gallon water heater, and an updated primary shower. The property is well-equipped for country living with a 515-foot water well, large septic system, two 500-gallon propane tanks, and efficiency-focused features like instant hot water circulation, a whole-house vacuum system, water softener, and a cell phone booster. Outside, you’ll find a massive 40x20 workshop with power and water, additional shed, a goat pen, and combination of open land and wooded areas currently under a grazing lease (buyers can inquire about continuing). There’s also a generator hookup already in place for future use. All of this just minutes from downtown Liberty Hill, giving you the space and freedom of country living with quick access to shops, dining, and everyday conveniences. Lovingly cared for and move-in ready, this one-owner home offers the perfect blend of space, functionality, views, and location.
