
- Buy
- Rent
- Commercial
- Find an Agent
1429 Davis Mountain Loop, Cedar Park, TX 78613





















































































TX/Williamson/Cedar Park/78613/1429 Davis Mountain Loop, Cedar Park, TX 786131429 Davis Mountain Loop, Cedar Park, TX 78613
1429 Davis Mountain Loop, Cedar Park, TX 78613
House for Sale by Julie Mattoon, CENTURY 21 Integra.
- Overview
- Details
- Open Houses
- More
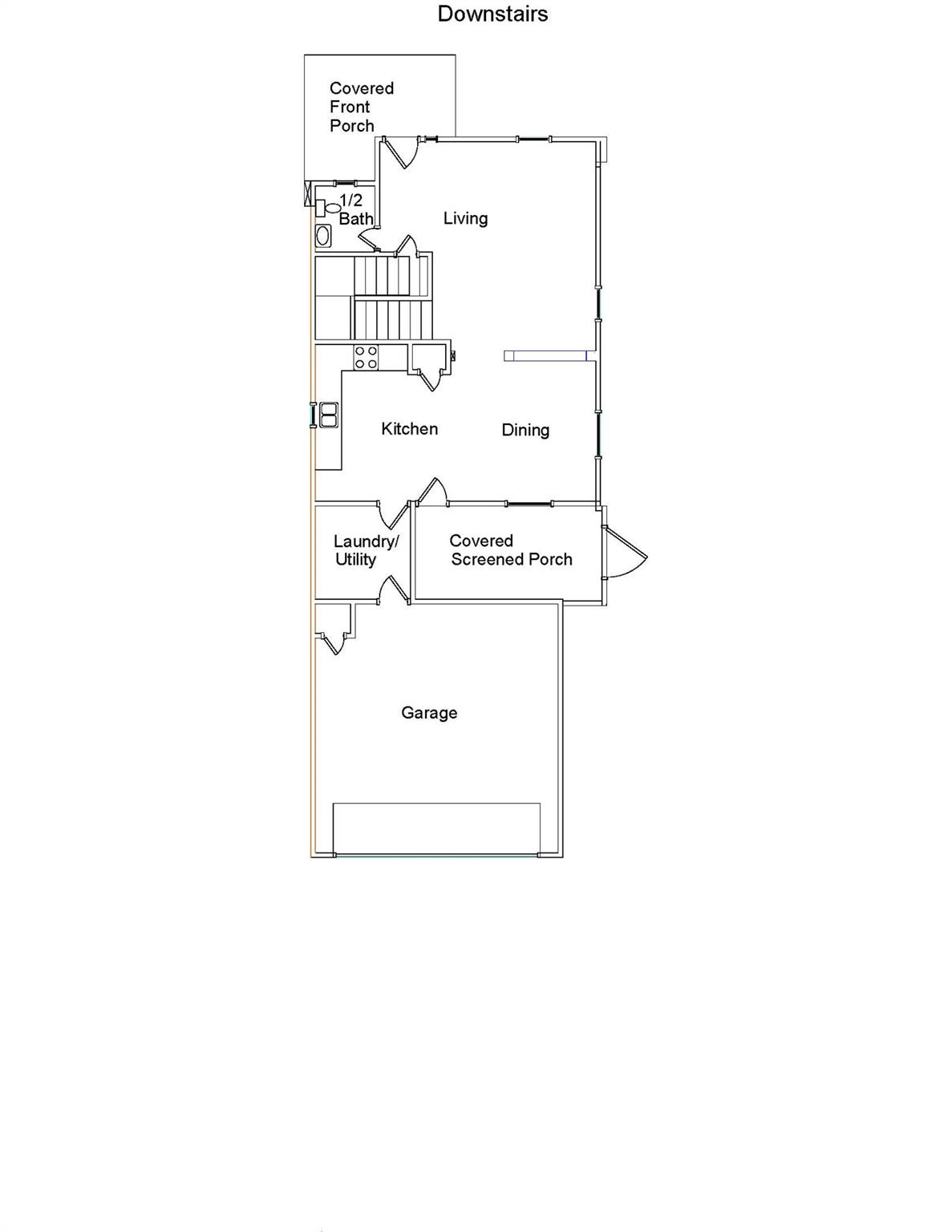
1429 Davis Mountain Loop | Move-In Ready Craftsman Gem Skip the renovations and move right into this pristine, turn-key home at 1429 Davis Mountain Loop! Located in a picturesque neighborhood featuring classic Craftsman architecture and charming white picket fences, this property is the definition of Move-In Ready. The interior has been completely refreshed with brand-new flooring and fresh paint, providing a clean, modern canvas for its new owners. The heart of the home features a gas range—a favorite for home chefs—along with efficient gas central heat. Storage is never an issue here; the home is packed with "extra" space, including a convenient linen closet, four large walk-in closets, and two sliding-door closets. For those working from home, a secluded nook offers a quiet, dedicated space for a study or home office. Key Features & Layout: Upper-Level Privacy: All bedrooms are situated upstairs, including a primary suite with dual vanities. Bonus nook as well that can be used as a reading area or study. Outdoor Living: Relax on the screened-in porch or utilize the unique two separate gated, fenced yards—a rare and perfect setup for pet lovers. Curb Appeal: The home features alley access to the garage, maintaining a clean, beautiful street view. Unbeatable Location & Schools: Premier Education: Zoned for highly rated Leander ISD schools: Giddens Elementary, Wiley Middle, and Vista Ridge High. Community: Situated just two blocks from the Cedar Park Recreation Center. From the new finishes to the abundance of storage, every detail of this home is designed for an easy transition. Simply bring your boxes and start living the Cedar Park lifestyle today!
