
- Buy
- Rent
- Commercial
- Find an Agent

1401 Calago Cv, Leander, TX 78641





















































































TX/Travis/Leander/78641/1401 Calago Cv, Leander, TX 786411401 Calago Cv, Leander, TX 78641
1401 Calago Cv, Leander, TX 78641
House for Sale by SEAN SOBIESKI, Orchard Brokerage.
- Overview
- Details
- Open Houses
- More
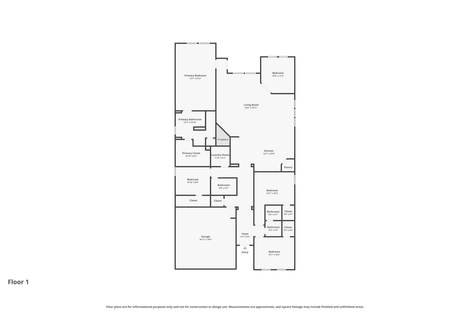
Discover Hill Country living at 1401 Calago Cove, an exceptional 2019 Highland Home nestled in the highly sought-after Travisso community. Blending modern luxury with everyday functionality, this beautifully maintained residence offers access to resort-style amenities including a clubhouse, pool, sports courts, and more- all with convenient access to major roadways for an effortless lifestyle. Thoughtfully designed with both comfort and privacy in mind, the home’s layout centers around a spacious, open-concept kitchen and living area—the true heart of the home—perfect for gathering, entertaining, everyday living and a cozy fireplace that anchors the space with warmth and charm. Bedrooms are strategically positioned to provide separation and a sense of personal retreat for each member of the household. The chef-inspired upgraded Level 5 kitchen is a standout feature, showcasing an oversized gas range, double ovens, stainless steel appliances, and a striking oversized island. A farmhouse sink, built-in microwave, custom cabinetry, and additional storage with dedicated counter space elevate both style and functionality. Step outside to your backyard oasis, where an extended patio and fully equipped outdoor kitchen, complete with a gas grill and Green Egg create the perfect setting for entertaining or relaxing under the Texas sky. Thoughtful landscaping enhances both beauty and privacy, making this outdoor space truly special. Additional highlights include a customized garage with epoxy flooring, built-in cabinets, workbench, and overhead storage—ideal for organization and versatility. Added attic insulation keeps the home comfortable year-round, while a tankless water heater ensures endless hot water for busy households. Smart home features include Google cameras throughout key areas, a Ring doorbell, and a camera integrated garage door opener. Discounted rate options and no lender fee future refinancing may be available for qualified buyers of this home