
- Buy
- Rent
- Commercial
- Find an Agent

1115 Fairway Dr, Belton, TX 76513










TX/Bell/Belton/76513/1115 Fairway Dr, Belton, TX 765131115 Fairway Dr, Belton, TX 76513
1115 Fairway Dr, Belton, TX 76513
Unimproved Land for Sale by Sree Pichikala, FULL CIRCLE RE.
- Overview
- Details
- Open Houses
- More
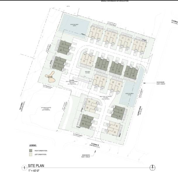
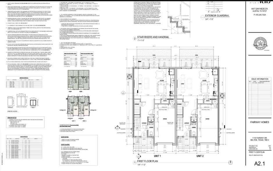
Sale of 2.94 acres of fully entitled land on Fairway Dr. Belton, TX The site is approved for MF – Multiple Family. Expected to complete City Approvals soon(Submission completed): Civils, Architectural, Structural, MEP (all of the engineering approvals only) for Multi-Family 32 Townhomes (16 duplexes), with utilities at the property. Entitlements: The property is approved to build 32 townhomes. The seller completes the approvals as part of the sale. The buyer will have to pay the city fees, utilities connection fees, park improvement fees, park land fees and/or any other city, county, federal fees required for the construction permit, which includes any tree mitigation as / if required. Site Features Utilities and Infrastructure: Water, Electricity. Sewer, Cable, and Internet is available on site. Access : Fairway Townhomes is conveniently located near major highways (I-35 & I-14 ), making commutes to work or school quick and efficient. Additionally, its proximity to shopping centers, restaurants, and entertainment options ensures that residents have easy access to all essential services. It has easy and convenient commuting distance to major employment in cities near by such as Temple, Fort worth, Killeen, Austin etc. The information contained herein was obtained from sources deemed reliable; however Full Circle RE agent or seller makes no guaranties, warranties or representations to the completeness or accuracy thereof. The representatives, attorneys, agents, brokers, buyers and / or users must complete their due diligence with government and permitted agencies such as utility companies / providers, city, county, state, Federal etc. The presentation of this real estate information is subject to error; omissions,; changes of price; prior sale or lease; or withdrawal without notice, Full Circle RE agent, which provides real estate brokerage services, is a division of Samyama Realty LLC (Full Circle RE), a Texas Limited Liability Company.