
- Buy
- Rent
- Commercial
- Find an Agent

1853 Crooked Creek St, Leander, TX 78641










TX/Williamson/Leander/78641/1853 Crooked Creek St, Leander, TX 786411853 Crooked Creek St, Leander, TX 78641
1853 Crooked Creek St, Leander, TX 78641
House for Sale by Dave Clinton, D.R. Horton, AMERICA'S Builder.
- Overview
- Details
- Open Houses
- More
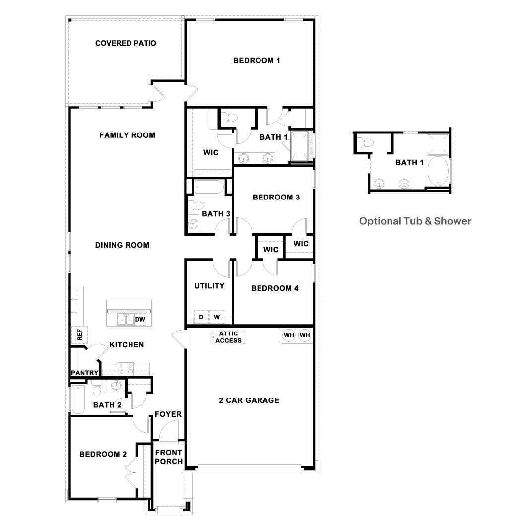
UNDER CONSTRUCTION - EST COMPLETION NOW!!!!!!!!!!!!!!!!!!!!! Photos are representative of plan and may vary as built. Introducing the Steinbeck, a single story floorplan at Rosenbusch Ranch in Leander, TX. This home includes 4 bedrooms, 3 bathrooms, and a 2-car garage all across 2,209 square feet. Entering from the spacious front porch of the home, you'll pass a secondary bedroom and full bathroom. Next you will find yourself in the spacious kitchen which features a kitchen island, Silestone® or quartz countertops, stainless steel appliances, a walk in pantry, and decorative tile backsplash. The kitchen island overlooks the dining and family space, making it perfect for entertaining guests. The family room leads you outside to the large covered patio. On the opposite side of the home you'll find the other 2 other bedrooms, a bathroom and the laundry room. Tucked away at the back of the home is the large main bedroom, bedroom 1. This bedroom features plenty of natural lighting and a spacious bathroom with two sinks, a walk in closet and a walk in shower. This home comes included with a professionally designed landscape package and a full irrigation system as well as our Home is Connected base package that offers devices such as a Video Doorbell, Deako Smart Light Switch, a Honeywell Thermostat, and more.