
- Buy
- Rent
- Commercial
- Find an Agent

1502 Murray Ln, Austin, TX 78703










TX/Travis/Austin/78703/1502 Murray Ln, Austin, TX 787031502 Murray Ln, Austin, TX 78703
1502 Murray Ln, Austin, TX 78703
House for Sale by Morgan Smith, KW-Austin Portfolio Real Estate.
- Overview
- Details
- Open Houses
- More
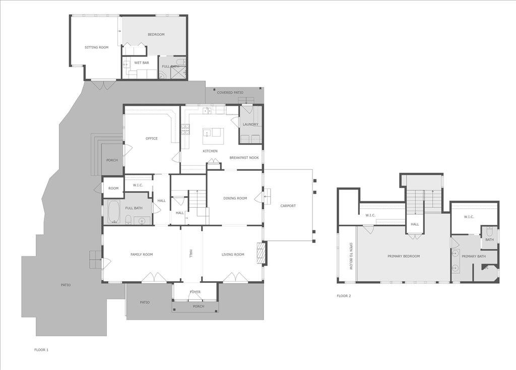
Welcome to 1502 Murray Drive, a hidden gem on a lush and private 0.267-acre lot in one of Austin’s most desirable central neighborhood, Old Enfield. Located near the historic Pease Mansion, this timeless two-story home combines classic charm, a detached guest house, and an unbeatable location just minutes from downtown. Inside, the main home features warm hardwood floors, multiple living areas, and abundant natural light. The formal living room is anchored by a fireplace, while the bright family room is wrapped in windows overlooking the peaceful courtyard with fire pit. The kitchen includes stainless steel appliances, a center island, built-in breakfast banquet, and ample cabinetry. A gorgeous full guest bath with soaking tub is located on the main level. Upstairs, the private primary suite feels like a treetop retreat with vaulted ceilings, arched windows, a cozy sitting area, and a tucked-away home office nook. The en suite bath offers dual vanities, a walk-in shower, and generous built-in storage. There are two walk-in closets. The detached guest house provides flexibility with a private living area, bedroom, full bath and mini kitchen perfect for guests, creative space, or rental income. Outdoor spaces are a secluded sanctuary featuring a brick-paved patio, fire pit, shaded sitting areas, and a turf yard surrounded by mature landscaping. A carport and circle driveway provide ample off-street parking. Just across 15th Street, enjoy Clarksville favorites including Jeffrey’s, Josephine House, Medici Coffee, and Fresh Plus. For buyers seeking a new build, an architect’s opinion is available outlining development potential. Whether you choose to renovate, rebuild, or enjoy as-is, 1502 Murray Drive offers an exceptional opportunity to own a piece of Austin’s most beloved and walkable enclave. Shown by appointment only.