
- Buy
- Rent
- Commercial
- Find an Agent

12112 Pike Bnd, Mustang Ridge, TX 78610

















































TX/Travis/Mustang Ridge/78610/12112 Pike Bnd, Mustang Ridge, TX 7861012112 Pike Bnd, Mustang Ridge, TX 78610
12112 Pike Bnd, Mustang Ridge, TX 78610
House for Sale by Dave Clinton, D.R. Horton, AMERICA'S Builder.
- Overview
- Details
- Open Houses
- More
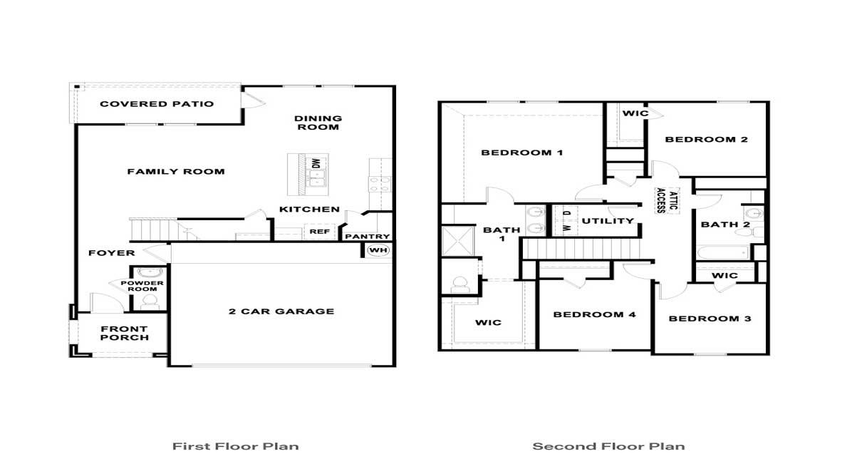
UNDER CONSTRUCTION - EST COMPLETION IN APRIL Photos are representative of plan and may vary as built. The Grace is one of our two-story floorplans featured in our Durango community in Mustang Ridge, TX. The Grace is a two-story floorplan offering 1,952 sq. ft. of living space across 4 bedrooms and 2.5 bathrooms. As you enter the home through foyer, you'll see the convenient half bath next to the stairwell. Continuing into the home you will enter the wide-open living space. The family room flows into the dining area and kitchen which features quartz countertops, stainless steel appliances, and a large kitchen island. This space offers tons of natural lighting and looks out to the spacious covered patio. Upstairs you will find all of the bedrooms, giving the home a more private feel. The main bedroom, bedroom 1, offers a large walk-in closet and bathroom that includes two sinks and a walk-in shower. This home comes included with a professionally designed landscape package and an irrigation system as well as our America's Smart Home® package that offers devices such as the Qolsys IQ Panel, Video Doorbell, Alarm.com app, Honeywell Thermostat, Deako Smart Light Switch, Kwikset Smart lock, and more.